Trang Chủ
Giới Thiệu
Tổng Quan
Thị Trường Xuất Khẩu
Các Văn Bằng Chứng Chỉ
Sản xuất & nghiên cứu
E-Catalogue
Vùng nguyên liệu
Sản Phẩm
Sản phẩm đóng lon
Sản phẩm đông lạnh
Sản phẩm đóng ly nhựa
Sản phẩm đóng túi
Phát Triển Bền Vững
Truyền Thông
Tin Ngành
Tin từ Westfood
Bản tin sức khỏe
Thư viện video
Thư viện ảnh
Quan hệ cổ đông
Tuyển dụng
Liên hệ
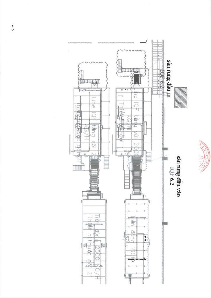
Thư mời chào giá Thiết kế thi công sàn rung đầu vào và đầu ra sản phẩm IQF6.2
Trang Chủ
Truyền Thông
Tin từ Westfood
Thư mời chào giá Thiết kế thi công sàn rung đầu vào và đầu ra sản phẩm IQF6.2
Thư mời chào giá Cung cấp lắp đặt máy Cắt Xí ngầu trái cây như Xoài, Thanh long, Đu đủ…
5 Tháng Ba, 2026
Thư mời chào giá Cung cấp lắp đặt hoàn thiện hệ thống dò kim loại trực tiếp từ đầu ra IQF trên hệ thống băng tải lựa
5 Tháng Ba, 2026
0
5 Tháng Ba, 2026
Hạng mục
Tin từ Westfood
Tags
Bài viết liên quan
14 Tháng Tư, 2026
ĐHĐCĐ thường niên WestFood 2026: Đặt mục tiêu khẳng định vị thế trong lĩnh vực chế biến nông sản xuất khẩu
Đọc tiếp
10 Tháng Ba, 2026
WestFood tham dự Foodex Japan 2026: Trân trọng mời Quý đối tác đến tham quan và tìm hiểu thông tin
Đọc tiếp
10 Tháng Ba, 2026
WestFood vinh dự đón tiếp Đoàn công tác UBND TP. Cần Thơ đến thăm và chúc Tết doanh nghiệp
Đọc tiếp
//]]>